Fabricacion Arcade Konami planos originales!
Reglas del Foro
Las reglas son muy sencillas. Por favor abstengase de postear acerca de copias piratas, descargas ilegales, enlaces, etc. Lo mismo aplica a material ofensivo, es decir, fuera de contexto o inapropiado.
Todo lo demás está permitido siempre y cuando no se esté ofendiendo a alguien más de manera directa e intencional. Por lo mismo no se permite insultar a otras personas.
Cualquier violación a éste reglamento, resultará en un ban permanente.
Las reglas son muy sencillas. Por favor abstengase de postear acerca de copias piratas, descargas ilegales, enlaces, etc. Lo mismo aplica a material ofensivo, es decir, fuera de contexto o inapropiado.
Todo lo demás está permitido siempre y cuando no se esté ofendiendo a alguien más de manera directa e intencional. Por lo mismo no se permite insultar a otras personas.
Cualquier violación a éste reglamento, resultará en un ban permanente.
Fabricacion Arcade Konami planos originales!
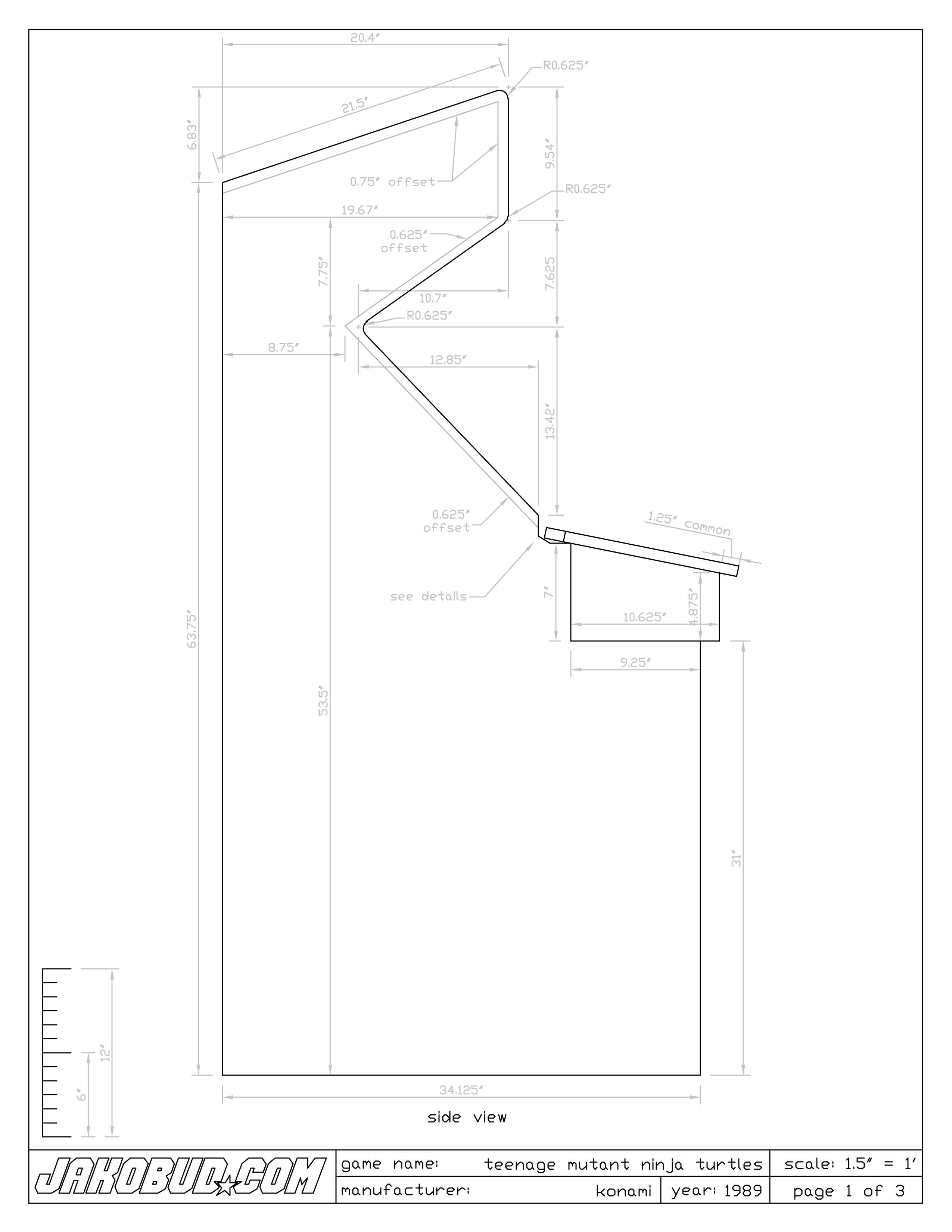
Hola! Hace tiempo q queria unirme a esta comunidad tan grande e interesante llamada coleccionismo de Arcades. Quise adquirir una pero siempre los gabinetes estaban en malas condiciones ya q estan fabricados en aglomerado. La solucion? En uno de mis viajes de trabajo pude conocer a una compañia q maquilaba estos gabinetes y ahora se dedican a otras cosas totalmente diferentes. Me facilitaron planos y decido entonces fabricar mi propio gabinete y usar partes originales nuevas para recrear aunque sea una o dos por el momento.. todo empezo como un hobby y ahora ya hasta amigos y coleccionistas les ha gustado el trabajo..espero les guste! Por cierto busco la de turtles in time jeje
Última edición por SuperNabo el Mié Oct 16, 2019 3:57 pm, editado 1 vez en total.
Re: Fabricacion Arcade Konami planos originales!
La verdad se ven muy bien los gabinetes, y además no son de aglomerado, el único problema que veo es que no incluyen el marco de plastico que rodea al monitor (actualmente es la parte más difícil de conseguir del gabinete original); checa si puedes mandarlo a hacer en algún lado o conseguir alguno original en ebay o foro arcade como KLOV, UKVAC o ArcadeOtaku.
Re: Fabricacion Arcade Konami planos originales!
Felicidades, el gabinete quedó muy bien. Estaré al pendiente de los resultados de tus otros trabajos que mencionas 
Re: Fabricacion Arcade Konami planos originales!
Si ya la estoy consiguiendo jeje muchas gracias. Aqui desde Guadalajara lo q necesiten.
-
vitocheroms
- Mensajes: 185
- Registrado: Vie Jul 31, 2015 6:47 pm
- Cuenta de Twitter: @vitoche_inc
Re: Fabricacion Arcade Konami planos originales!
estaria bien si pudieras compartir los planos para poder hacer una te quedo de maravilla saludos
Re: Fabricacion Arcade Konami planos originales!
Amigo se ve increible, tambien me uno a la peticion de los planos 
- Jorge Imix
- Mensajes: 37
- Registrado: Mar Dic 09, 2014 5:31 pm
- Cuenta de Twitter: @jorgeimix
- Contactar:
Re: Fabricacion Arcade Konami planos originales!
Te quedó muy bien!
Me gustaría hacer unas así para mí, por favor comparte los planos!
Me gustaría hacer unas así para mí, por favor comparte los planos!
Homo homini lupus
Re: Fabricacion Arcade Konami planos originales!
Espero y les sirvan. saludos
-
blackmachine
- Mensajes: 3
- Registrado: Mar Ago 02, 2016 1:47 pm
Re: Fabricacion Arcade Konami planos originales!
AMIGO ME PODRÍAS PROPORCIONAR TU ARTE DE LAS TORTUGAS NINJA QUE UTILIZASTE LO EH BUSCADO POR TODAS PARTES TE LO AGRADECERÍA MUCHO GRACIAS