Snow Bros 2 con problemas de sonido (sonidos extra!)

Gabinetes, PCBs, mantenimiento, etc
Reglas del Foro
Las reglas son muy sencillas. Por favor abstengase de postear acerca de copias piratas, descargas ilegales, enlaces, etc. Lo mismo aplica a material ofensivo, es decir, fuera de contexto o inapropiado.

Todo lo demás está permitido siempre y cuando no se esté ofendiendo a alguien más de manera directa e intencional. Por lo mismo no se permite insultar a otras personas.

Cualquier violación a éste reglamento, resultará en un ban permanente.
Yotsuya
Mensajes: 12
Registrado: Mié Dic 02, 2020 3:16 pm

Re: Snow Bros 2 con problemas de sonido (sonidos extra!)

Mensaje por Yotsuya »

SpaceMx escribió: Dom Dic 06, 2020 11:39 pm ¿Al decir siempre activos te refieres a estado 0 lógico, verdad? recuerda que se activan en 0 y se inhabilitan en 1 lógico.
Pues estés están siempre 1. Medidos en OKI, YM y las salidas del 138 (pines 9 y 10)
Las señales que tengo en el 138 son aprox.
1: pulse high
2: pulse high
3: pulse low
4: low (0)
5: pulse low
6: high (1)

Por lo que veo en la tabla, la única manera de que Y5 y Y6 cambien de estado, sería mantener pin 3 (1) y alternar pines 1 y 2 entre 1 y 0 dependiendo del tipo de sonido.
Sin embargo mis pines 1, 2 y 3 pulsan constantemente y no parecen cambiar de estado quando selecciono música.
SpaceMx
Mensajes: 32
Registrado: Lun Abr 09, 2018 10:51 am

Re: Snow Bros 2 con problemas de sonido (sonidos extra!)

Mensaje por SpaceMx »

Yotsuya escribió: Lun Dic 07, 2020 2:52 am
SpaceMx escribió: Dom Dic 06, 2020 11:39 pm ¿Al decir siempre activos te refieres a estado 0 lógico, verdad? recuerda que se activan en 0 y se inhabilitan en 1 lógico.
Pues estés están siempre 1. Medidos en OKI, YM y las salidas del 138 (pines 9 y 10)
Las señales que tengo en el 138 son aprox.
1: pulse high
2: pulse high
3: pulse low
4: low (0)
5: pulse low
6: high (1)

Por lo que veo en la tabla, la única manera de que Y5 y Y6 cambien de estado, sería mantener pin 3 (1) y alternar pines 1 y 2 entre 1 y 0 dependiendo del tipo de sonido.
Sin embargo mis pines 1, 2 y 3 pulsan constantemente y no parecen cambiar de estado quando selecciono música.
De las señales aproximadas que mencionas, indicas que pin#3 , es decir C se mantiene en estado lógico 0, lo cual provoca que nunca se habiliten las señales de salida Y4,Y5,Y6 y Y7. Es decir, de acuerdo a la tabla de verdad se mantienen en estado lógico 1.

Aunque posteriormente señalas que pines 1, 2 y 3 pulsan constantemente, lo cual indicaría un comportamiento correcto. Revisa nuevamente las mediciones y confirma que C (pin 3) tenga actividad y no permanezca en estado lógico 0 o que se encuentre en corto a GND. De ser así deberás seguir el rastro de la señal que ingresa y revisar el circuito de donde proviene.

También revisa todas las otras señales de salida (Y0 a Y3), para verificar que no permanezcan en un estado fijo.

Anexo:
Las lecturas que obtengo con punta lógica en mi PCB al reproducir el Sound Number: 03 Title: World 1 son las siguientes.
snowbros2_ls138.gif
snowbros2_ls138.gif (32.35 MiB) Visto 3490 veces
La primer lectura, CS del OKI6295 tiene muy poca actividad y casi se ve como si estuviera en 1 lógico permanentemente, pero al medir con osciloscopio se detecta que si tiene pulsos.
Yotsuya
Mensajes: 12
Registrado: Mié Dic 02, 2020 3:16 pm

Re: Snow Bros 2 con problemas de sonido (sonidos extra!)

Mensaje por Yotsuya »

SpaceMx !! No se como agradecer tu ayuda.

Como ahun no tengo osciloscopio y no me fio de mi punta logica, compre un analizador logico barato.
Estas son las señales cuando reproduce Sound Number: 03 Title: World 1
Imagen

Para que Y6 se coloque en L tiene que seguir esta orden:
G1=H G2A=L C=H B=H A=L
Como puedes ver G1 (H) y G2A(L) estan OK, el problema esta con las entradas. C está siempre H (OK) el problema es que siempre que baja A tambien baja B, por lo que no altera las señales de salida Y6 (o Y5) pero si supuestamente Y4 (tengo que confirmarlo).
Adjuntos
musica geral.PNG
musica geral.PNG (22.75 KiB) Visto 3455 veces
SpaceMx
Mensajes: 32
Registrado: Lun Abr 09, 2018 10:51 am

Re: Snow Bros 2 con problemas de sonido (sonidos extra!)

Mensaje por SpaceMx »

Como puedes ver G1 (H) y G2A(L) estan OK, el problema esta con las entradas. C está siempre H (OK) el problema es que siempre que baja A tambien baja B, por lo que no altera las señales de salida Y6 (o Y5) pero si supuestamente Y4 (tengo que confirmarlo).
Como bien dices, debes confirmar que las otras señales de salida en el LS138 sean congruentes con la entrada recibida. Te muestro un video del analizador lógico con las señales que obtengo a la entrada y salida del LS138 mientras se reproduce el Sound Number 03.



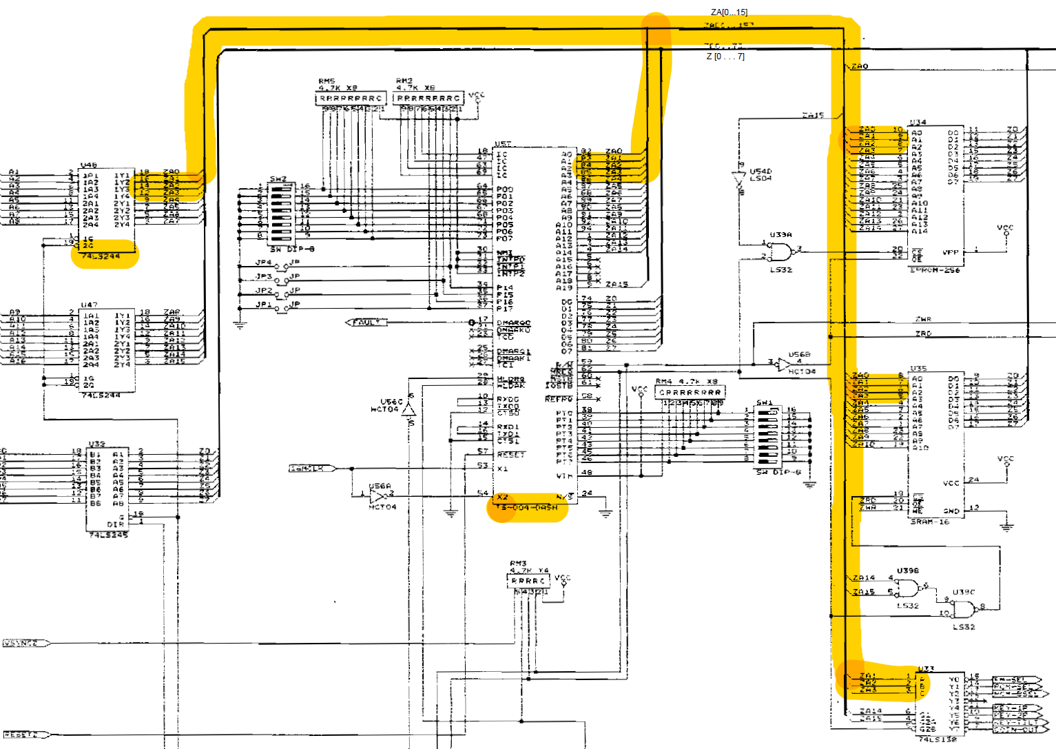
Considerando el comportamiento de las entradas A, B, C en tu PCB, al parecer debes seguir el rastro de las señales de entrada del LS138 (A,B,C) para verificar desde su origen sean correctas. Me refiero a que los circuitos donde se originan funcionen de acuerdo a lo que indica su hoja de especificaciones, así como también sirve para revisar que las pistas de conexión no tengan algún corto o falla. Lamentablemente no sé si exista públicamente un diagrama esquemático de la PCB Snow Bros 2 Bootleg (original tampoco).

Por lo cual, lo que se me ocurre es usar el esquemático de Knuckle Bash como guía, aunque sinceramente no sé hasta que grado se parece el hardware con Snow Bros 2, pero tal vez te puede servir para ubicar los circuitos donde se originan las señales A, B, C.
KnuckleBash_sound.PNG
Al menos en Knuckle Bash todo indica que A, B, C se conectan con una EPROM y una RAM, por lo cual posiblemente alguno de estos elementos si tenga algún problema y tu diagnóstico inicial de revisar la EPROM sea el correcto.
Yotsuya
Mensajes: 12
Registrado: Mié Dic 02, 2020 3:16 pm

Re: Snow Bros 2 con problemas de sonido (sonidos extra!)

Mensaje por Yotsuya »

Infelizmente las similitudes con Knuckle Bash acaban en ese punto, por lo menos con mi placa. Al contrario de Knuckle Bash, esta placa no tiene una CPU para el sonido, y parece que es el 68000 quien trata de todo.
Despues de algun tiempo midiendo continuidad, las data lines (D0-D7) hacen el mismo tipo de percurso, 68K, ROM, RAM, OKI y YM conectados.
Donde empiezan las diferencias es en las address, apesar que las lineas A0-A14 hacen el percurso similar (68K, ROM, RAM) ninguna de estas lineas van al 74LS138.
Los pines 1(A), 2(B) y 3(C) del 74LS138 vienen de los pines 47(A19), 48(A20) y 50(A21) de 68K, entrando tambien el los imputs de un 16v8, pero no encuentro continuidad con ninguna ram o rom.
No sé si el 16v8 puede influenciar, si no, ya no se donde mirar.
SpaceMx
Mensajes: 32
Registrado: Lun Abr 09, 2018 10:51 am

Re: Snow Bros 2 con problemas de sonido (sonidos extra!)

Mensaje por SpaceMx »

Por favor verifica las conexiones entre el 68K y el 74LS138, ya que difieren un poco con las de mi PCB. En mi caso los pines del 74LS138 se conectan como sigue:

pin#1(A) =>68K pin#48(A20) =>PAL pin#2
pin#2(B) =>68K pin#50(A21) =>PAL pin#3
pin#3(C) =>68K pin#51(A22) =>PAL pin#4
pin#4(G2A) =>68K pin#52(A23) =>PAL pin#5
pin#5(G2B) =>68K pin#6 =>PAL pin#6
pin#6(G1) = +5V

De ser correctas tus mediciones, revisa que entre pin#49 y #50 del 68K no tengan continuidad, ya que pin#49 es una entrada de alimentación y en tus mediciones #50 del 68K = pin#3(C) del 74LS138 siempre está en estado lógico “ALTO”.

Si detectas corto revisa que no existan modificaciones o reparaciones previas en la zona que pudieran generar el problema.

La PAL si puede tener influencia en la falla al estar conectada al mismo nodo de los pines con 74LS138 y CPU 68K. Ya que si se detecta un corto en el nodo, que forma pin#3(C)74LS138 = pin#50(A21)68K y PAL, cualquiera de estos elementos más las pistas que los conectan pueden ser responsables de la falla.

Por ejemplo si se confirma corto en la señal que llega a pin#3(C)74LS138 , sabemos que puede estar en el 68K, la PAL, las pistas de conexión ó en el 74LS138. Aunque este último se descarta, ya que hiciste el reemplazo recientemente. Por lo cual nos quedaría revisar las pistas, la PAL y el 68K.

Si sospechas de falla en la PAL puedes confirmar midiendo la salida del pin#50 de tu 68K al interrumpir la conectividad que existe con el pin correspondiente en tu circuito PAL.

Para ello puedes hacerlo de diversas maneras.

La primera y más fácil sería que tuvieras la suerte de tener la PAL en socket y solo tendrías que sacar el pin en cuestión y medir la señal en el 68K para confirmar si se mantiene en estado “ALTO” o ya presenta actividad.

La segunda sería cortar la continuidad de la pista que conecta entre el 68K y la PAL manteniendo conductividad entre 68K y el 74LS138 y medir la señal en el 68K.

La tercera opción sería cortar la pata correspondiente de la PAL y medir la señal en el 68K. Al momento de cortar, considerar que debemos reparar el corte si todo indica que no tiene falla. Por lo cual se recomienda un corte alejado del cuerpo de la PAL para facilitar la reparación.

La cuarta opción es desoldar la PAL e instalarla en socket, sacar el pin en cuestión y medir la señal en el 68K. Esta última opción presenta el riesgo de dañar el circuito al tratar de removerlo de la PCB.

Debo mencionar que hasta este momento, las PAL de esta pcb Snow Bros 2 no se encuentran dumpeadas (respaldadas) en la base de datos del sitio jammarcade.net ni de otro que yo tenga conocimiento, por lo cual no se tiene la opción de reemplazarla si por algún motivo resulta dañada. Por lo cual, no está de más advertir que las sugerencias mencionadas anteriormente deben ejecutarse a criterio y bajo responsabilidad propia.

Tienes razón con respecto a que terminan las similitudes con el diagrama de Knuckle Bash, pues yo tampoco encontré conectividad del 74LS138 con EPROM o RAM
Responder